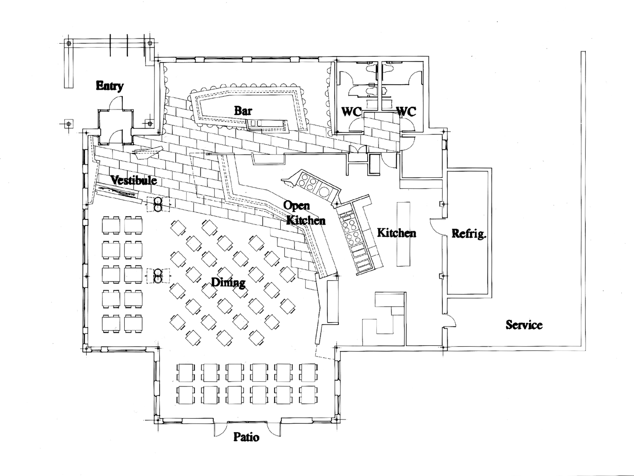
Synopsis: Designed as an “Asian Bistro,” Monsoon is organized around an open kitchen. Upon entering the vestibule, one is immediately aware of the kitchen, which is a theatrical focal point for the restaurant.
Detailed Description: The canted plaster canopy directs views toward the theatrical presentation of fresh food displayed and prepared on a generously sized counter. The shiny surfaces, stainless steel, copper, and paint all reflect the light from the open flames of the grilles. The spectacle of food preparation is visible to the restaurant patrons.
Located in Lebanon, New Hampshire, the Monsoon Restaurant presents a mood set by the dramatic juxtaposition of darker surfaces and highly illuminated areas. The background ambiance is more shaded from gently curved wire-mesh panels suspended overhead. These cloud-like forms take on different material qualities, depending on one’s viewpoint and the direction of light that strikes their surfaces. Sometimes these forms are opaque and dark gray; other times they shimmer. Specially designed computer-controlled lights in-between the panels change lighting levels subtly throughout the evening.
The design also honors Asian architecture. The milky screens above the open kitchen recall Japanese shoji screens. Bamboo columns bound in copper ties reference oriental materials and joinery. The concrete’s greenish tint mimics the lush jungles of Southeast Asia. The two sculptures by Roger Chudzik root the restaurant to local sources. The spectacular water sculpture splashes water onto native New England slate (mined and delivered by the artist), while the reed-like iron rods twist, turn and intertwine to create a screen of metal, stone, and water.
Monsoon’s final design resulted from the fruitful collaboration among a wide array of people, including builders, craftspeople, artists, engineers, consultants, the owners, and the architect.























